WELCOME TO Calder Mews Phase I

Bramham

£370,000

The Bramham is a uniquely designed three-four bedroom family home with an outstanding specification in Greetland, Halifax.

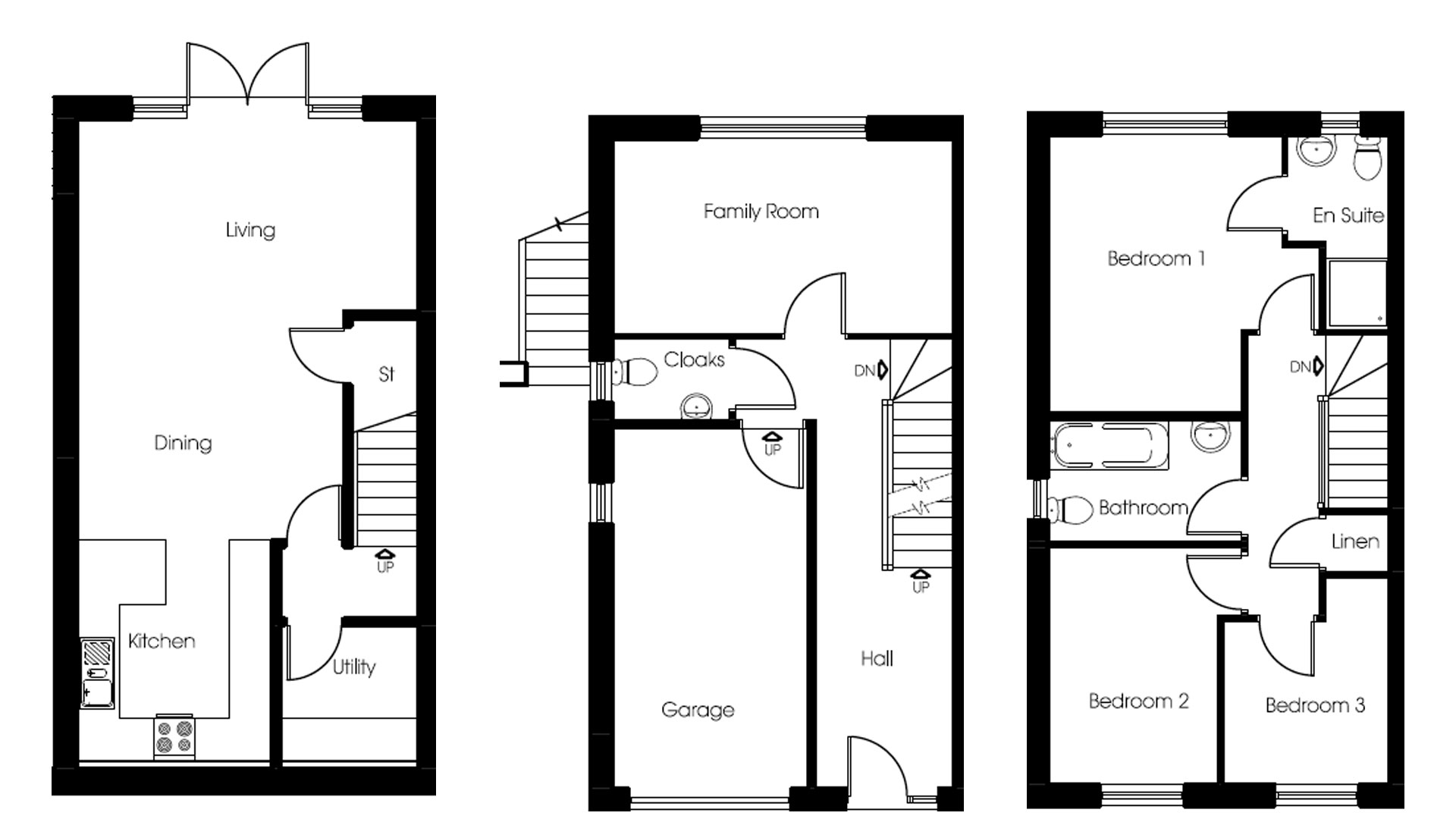
Entering on the upper ground floor, the Bramham’s welcoming hallway leads to an integral garage with internal access, a guest WC and a fourth bedroom/designated spacious family room with a large window overlooking the rear garden.

Downstairs you’ll find an exceptional open plan living and dining area perfect for socialising, featuring a stylish fitted Symphony kitchen with a breakfast bar and high-tech integrated appliances. Sleek French doors lead from the living area to the rear garden, and at the foot of the stairs leading to the upper ground floor you’ll find a handy utility closet with fitted base units and plumbing.

The Bramham’s top floor comprises three unique bedrooms perfect for a growing family; a generous single bedroom, a second double bedroom and an enviable master suite to the rear served by an en-suite bathroom. Along the hallway lies a spacious family bathroom with half-height tiling and an Ideal three-piece suite, and a handy linen closet neatly tucked away beside bedroom three.

The Bramham also features those little cherry-on-top touches that make all the difference, including high-tech energy-efficient appliances, soft-close cabinets, and a heavenly rain-head walk-in shower to the en-suite.

Enquire today.

Property to sell? No problem! Ask our friendly sales team for more information about our Smart Move and Part Exchange schemes!

3 Bedrooms

2 Bathrooms

Garage

Kitchen

  • Symphony kitchen with soft-close cabinets and drawers
  • Integrated oven, fridge freezer and dishwasher
  • 40mm worktop with upstand
  • Gas hob and cooker hood
  • Stainless steel 1.5 bowl sink with mixer tap
  • Contemporary under-cabinet downlights
  • USB socket

Utility

  • Fitted base units
  • 40mm worktop with upstand
  • Plumbing for washer/dryer

Bathroom

  • Ideal Standard three-piece bathroom suite
  • Polished chrome heated towel rail
  • Vanity unit
  • Polished chrome downlights
  • Half-height wall tiling

En-suite

  • Ideal Standard three-piece bathroom suite
  • Polished chrome heated towel rail
  • Rain-head shower with low-profile shower tray
  • Vanity unit
  • Polished chrome downlights
  • Full-height wall tiling to shower area
  • Shaver/charger socket

W/C

  • Sophisticated Ideal Standard two-piece suite
  • Stylish semi-pedestal basin
  • Polished chrome downlights

Internal Features

  • Stylish white panelled designer doors
  • White emulsion to walls and ceiling
  • Gloss to woodwork
  • Polished chrome sockets to hall, kitchen, and lounge
  • White sockets to remainder of home
  • High-efficiency combi boiler
  • Stelrad radiators with TRV controls
  • TV points and telecoms connections to three points
  • Cable in loft for potential aerial point
  • Wired smoke alarms with battery backup
  • Wired security alarm, PIR sensors to downstairs
  • USB socket to master bedroom

External Features

  • Intelligent and highly efficient double glazing
  • Anthracite colour window frames, white on inside
  • Black front door with chrome letterplate
  • French doors to rear
  • Low-maintenance soffits and fascias
  • Turf/soft landscaping to front garden
  • External light to porch and rear
  • Patio to rear
  • External tap to rear
  • External socket to rear
  • Integral garage with socket
  • Driveway
MAKE AN ENQUIRY
BOOK A VIEWING
VIEW SITE LAYOUT

FLOORPLAN

House Floorplan

Lower Ground Floor

Kitchen 2750mm x 3200mm 9’0″ x 10’5″
Dining 3750mm x 3200mm 12’3″ x 10’5″
Living 4800mm x 2700mm 15’8″ x 8’10”
Utility 1950mm x 2000mm 6’4″ x 6’6″

 

Upper Ground Floor

Garage 2730mm x 5040mm 8’11” x 16’6″
Cloaks 1640mm x 1120mm 5’4″ x 3’8″
Family 4800mm x 2720mm 15’8″ x 8’11”

 

First Floor

Bedroom 1 3280mm x 3880mm 10’9″ x 12’8″
En-suite 1430mm x 2720mm 4’8″ x 8’11”
Bedroom 2 2370mm x 3310mm 7’9″ x 10’10”
Bedroom 3 2330mm x 2280mm 7’7″ x 7’5″
Bathroom 2710mm x 1690mm 8’10” x 5’6″

 

RESERVE YOUR NEW HOME

SELECT YOUR PLOT FROM THE LIST BELOW.

PLOT

HOUSE TYPE

PRICE

ANTICIPATED MOVING DATE

21

Burlington

£380,000

13

Burlington

£365,000

12

Burlington

£375,000

6

Bramham

£345,000

7

Bramham

£370,000

5

Bramham

£345,000

4

Bramham

£345,000

Site Plan